Az értékesítő:
Csendes Zalán
+36 30 471 0917

Eladó lakás Pécs, 109 900 000 Ft, 102 négyzetméter

109 900 000 Ft
lakás, 102 négyzetméter
Építőanyag:
Tégla
Egész szobák:
4
Ingatlan állapota:
Kitűnő
Azonosító:
11571328
Értékesítés típusa:
eladó
Ingatlan típusa:
lakás
Település:
Pécs
Alapterület:
102
Ár:
109 900 000 Ft
Emelet:
3. emelet
Fűtés jellege:
Cirkó
Építési év:
21-50 éves
Erkély:
Van
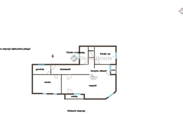
Pécs szívében, a Mária utcában kínálunk megvételre egy 138 m²-es, földszinti, tágas elrendezésű, 3 külön nyíló hálószobás + nappalis lakást közvetlen kertkapcsolattal. Az ingatlan igény szerint kocsibeállóval is megvásárolható. --Főbb jellemzők: - Nettó alapterület: 138 m² - Földszinti elhelyezkedés, - közvetlen kertkapcsolattal - 3 külön nyíló hálószoba + nappali - Tágas fürdőszoba káddal és zuhanyzóval - Külön vendég-WC - Klímaberendezés - Több tárolóhelyiség a lakás szintjén és az alagsorban - Gardrób Csendes, belvárosi elhelyezkedés A lakáshoz külön megvásárolható teremgarázs-beálló tartozik a szemközti társasházban, 7.000.000 Ft áron. Kinek ajánljuk? Ideális nagyobb családoknak, belvárost kedvelőknek, vagy akár irodai célra is, mivel az elhelyezkedés és a tágas terek sokféle hasznosítást lehetővé tesznek. További információért vagy megtekintésért keressen bizalommal! Érdeklődjön akár hétvégén/ünnepek alatt is! Csendes Zalán: 06304710917 Referencia szám: LK053503
https://ingatlanok.hu/elado/lakas/pecs/110-millio-ft;102-negyzetmeter;4-szoba;tegla-epitesu/11571328