Eladó lakás Pécs 109 900 000 Ft

Leírás

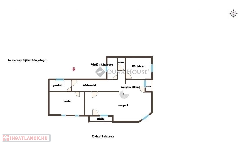
Pécs szívében, a Mária utcában kínálunk megvételre egy 138 m²-es, földszinti, tágas elrendezésű, 3 külön nyíló hálószobás + nappalis lakást közvetlen kertkapcsolattal.
Az ingatlan igény szerint kocsibeállóval is megvásárolható.

--Főbb jellemzők:

- Nettó alapterület: 138 m²
- Földszinti elhelyezkedés,
- közvetlen kertkapcsolattal
- 3 külön nyíló hálószoba + nappali
- Tágas fürdőszoba káddal és zuhanyzóval
- Külön vendég-WC
- Klímaberendezés
- Több tárolóhelyiség a lakás szintjén és az alagsorban
- Gardrób

Csendes, belvárosi elhelyezkedés A lakáshoz külön megvásárolható teremgarázs-beálló tartozik a szemközti társasházban, 7.000.000 Ft áron.

Kinek ajánljuk? Ideális nagyobb családoknak, belvárost kedvelőknek, vagy akár irodai célra is, mivel az elhelyezkedés és a tágas terek sokféle hasznosítást lehetővé tesznek.

További információért vagy megtekintésért keressen bizalommal!
Érdeklődjön akár hétvégén/ünnepek alatt is!
Csendes Zalán: 06304710917

Referencia szám: LK053503

Lakás részletei

Ár: 109 900 000 Ft
Méret: 102 négyzetméter
Azonosító: 11571328
Irodai azonosító: LK053503-5057670
Emelet: 3. emelet
Építőanyag: Tégla
Fűtés jellege: Cirkó
Ingatlan állapota: Kitűnő
Építési év: 21-50 éves
Egész szobák: 4

Egyéb jellemzők

  • Erkély

Térkép